︎
schnell&co
architekturlabor
013
val d'hérens︎bivouac
012
wangen︎aichermagazin 1.1
009
basel︎netto null 2040
007
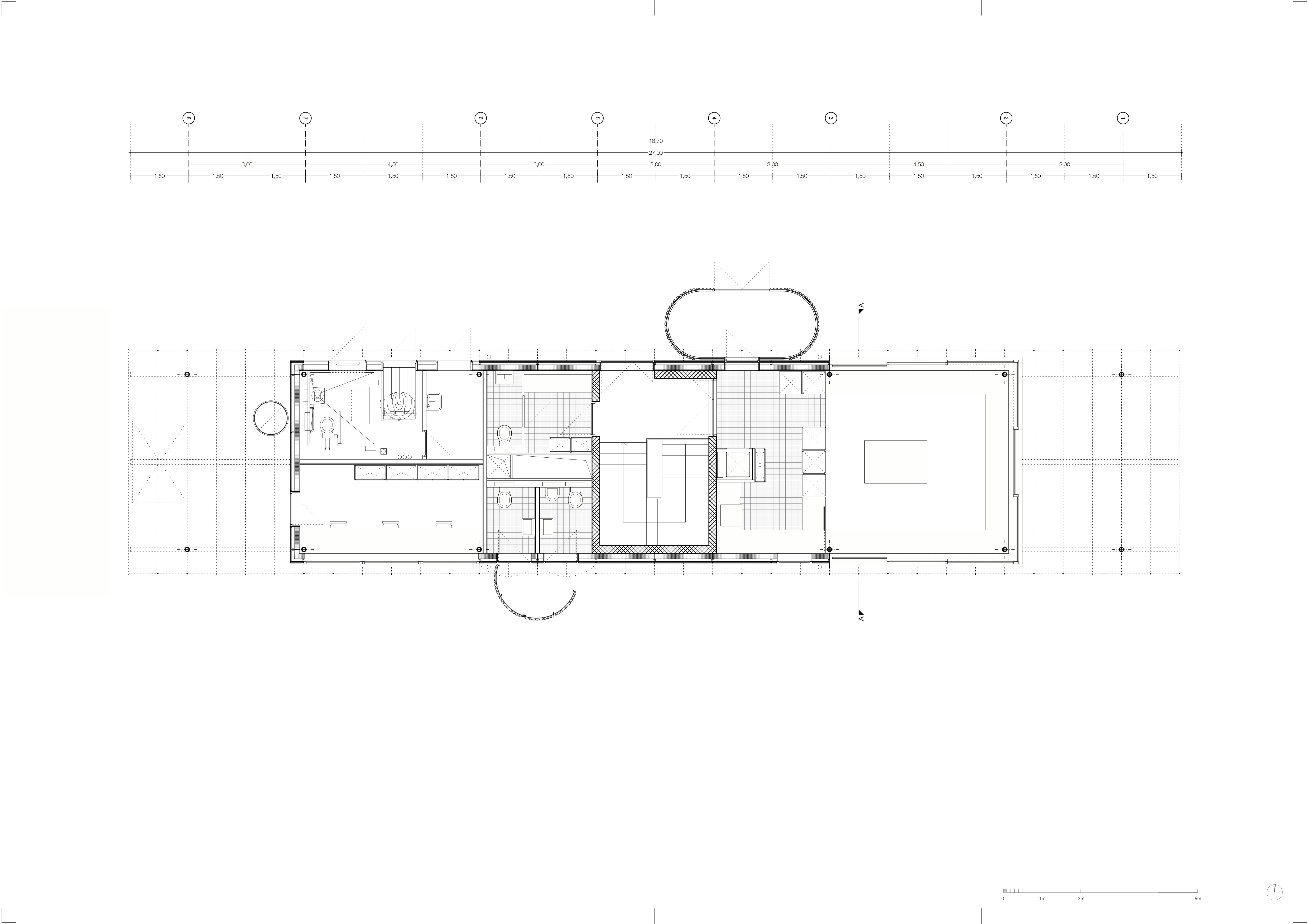
zürich︎kiosk
006
isny ︎aichermagazin
003
st. gallen︎textilmuseum
002
amrum ︎haus des gastes
info
︎
kiosk, stadthausanlage zürich
wettbewerbsbeitrag
februar 2022
mit mikael blomfelt
blomfelt