︎
schnell&co
architekturlabor
013
val d'hérens︎bivouac
012
wangen︎aichermagazin 1.1
009
basel︎netto null 2040
007
zürich︎kiosk
006
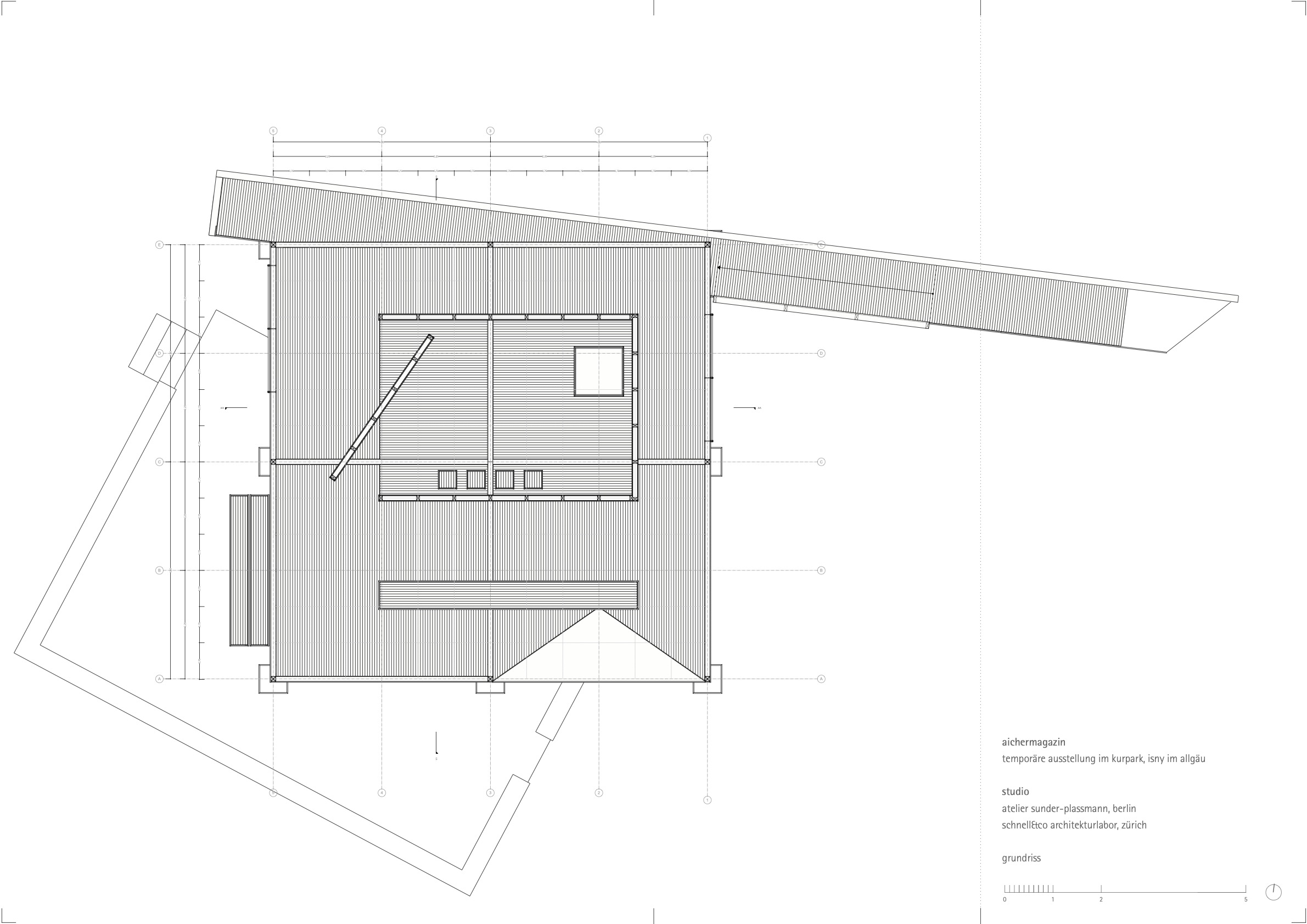
isny ︎aichermagazin
003
st. gallen︎textilmuseum
002
amrum ︎haus des gastes
info
︎
aichermagazin
temporäre ausstellung im park, isny im allgäu, mai bis oktober 22
2021-2022
mit malte sunder-plassmann
atelier sunder-plassman
fotografie,
mikael blomfelt